Basics
- Status: Leasing Now and Pre-Leasing For 2026
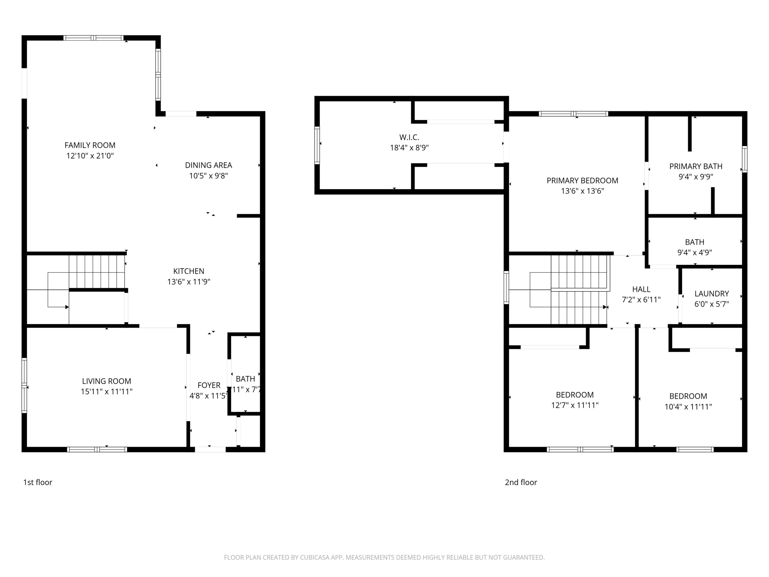
- Bedrooms: 3
- Bathrooms: 2.5
- Floors: 2
- Area: 1945 sq ft
- Lot size: .13 sq ft
- Year built: 2003
- Year remodeled: 2025
Description
- Description:
Perfect 3 Bedroom, 2.5 Bathroom home located in the Eastside neighborhood of Milford Hills.
Recently renovated, this house includes all new appliances, countertops, and flooring. It features an eat-in kitchen, spacious great room, separate dining room, brand new washer & dryer, and a half-bath on the main floor.
Upstairs, you will find two well-sized, naturally lit bedrooms, a laundry room and a full bathroom. The master suite is also upstairs and the master bathroom includes a double vanity, garden tub and a separate shower. The large walk-in master closet connects to an extra finished space over the garage. A nicely appointed window gives light to the space and makes it perfect for a small office or reading nook.
Wonderful extras include a two-car garage and a large fenced backyard with a small patio. Built in 2003, but renovated in October 2025. Convenient to UGA's campus and Vet School, Eastside restaurants, shopping and schools.
For Lease
Available Now for $1,950 or Pre-Leasing in August for $2,100
$1,950/month
